設計師宋微建與火藥雕刻師徐立平-央視《秘密大改造》
建筑空間設計是在指定使用功能下制作能滿足多數人審美觀的建筑物并能加以實施的藝術創作。所以
航天火箭和導彈飛行器,發動機的燃料需要依靠手工修整,燃料火藥整形在全世界都是一個難題,因為無法完全用機器代替。一旦藥面精度與設計不符,發動機點火之后,火藥不能按照預定走向燃燒,飛行就很可能偏離軌道,甚至爆炸。
火藥整形師徐立平就是以此為事業的航天工匠,0.5毫米是精度允許的最大誤差,而經徐立平之手雕刻出的火藥藥面誤差不超過0.2毫米,堪稱完美。2015年度獲選“感動中國”人物,2017年被評為航空航天月桂獎“大國工匠獎。
疏于照顧的家
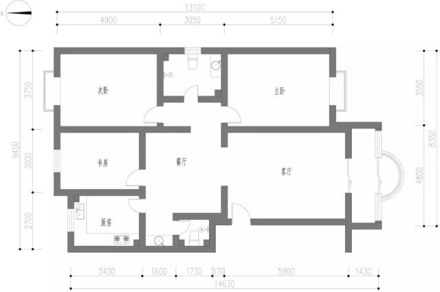
徐立平一家三口,住在一處建于2006年的六層居民樓頂層。三室二廳二衛,建筑面積138㎡,套內面積108㎡。住了12年的房子,客廳墻面已被暖氣熏黑,墻面大面積開裂;陽臺與客廳的隔墻遮擋,影響了采光。儲物空間少,家中物品隨處堆放。另外,航天人工作的特殊性,家里的家具的實用、舒適遠不能滿足需求。


面對這位為國家作出突出貢獻的傳奇人物,CCTV-2《秘密大改造》節目,邀請中國建筑學會室內設計分會副理事長、上海微建建筑空間設計首席設計師、上海農道鄉村規劃創作總監—宋微建,14天,為徐立平的家改造設計,致敬工匠精神,送上關愛與驚喜。?


“我覺得,我們是在為英雄做好事。航天人的精神,就是沒有后悔藥,有這種態度,14天,會做的很快也很好。”—宋微建?
徐家有著軍工家庭淵源,徐師傅所從事的火藥雕刻,有著高壓力、高危險性的特點,這個家就遠不同于普通家庭,除非設身處地,是難以體會這個特別家庭在承擔著什么。選擇“自然與工業”的設計概念,便是因此而發。
為家營造一個綠意生機的休憩環境,給予完全的舒適和放松,回了家,就如同回到自然。融入飽含記憶的軍工的元素,就不僅是身體的放松,也是主人熟悉的記憶與精神港灣。
自然感,是一種體驗。實木地板為整個空間帶來穩重與踏實,光源的分散變化,使得空間靈活輕盈,而無處不在的植物,釋放著綠意。
工藝感的打造,除了在功能上滿足主人對于工藝興趣。也依靠材質的選擇和氛圍的營造:紅磚墻的樸實質感能立刻勾起軍工的記憶,含有金屬材質的家居陳設更為自然的空間增添一分硬朗。
?現狀平面圖(改造前)
物品及問題梳理(改造前)
客廳“自然的過渡”
回家,打開門,入口處的三米高的綠植,歡迎主人回家,并隔絕外界。在原有建筑結構基礎上,通過將客廳與陽臺、餐廳和走道兩面隔墻的拆除,自然光被引入室內,貫通整個活動區域,形成寬敞、明亮的空間。
餐廳“裝進幸福”
利用原有結構柱增加的鞋柜、食品柜、餐桌,實現起居、收納、會客、餐廳的功能。
餐廳的長桌,會客時,可以容納十人的坐席,人多時,寫字臺的椅子也可以拿來用,長桌也可以拼成圓桌,滿足徐家一大家子的聚餐幸福時刻。
改造前
改造后
主臥—“新舊有別”
主臥為徐立平夫婦居住。保留了原有有著歷史記憶的實木衣柜,并增設了衣帽間。女主人和男主人不常穿衣物收納到衣帽柜,被子沙發墊子收納入床箱,其他物品收納入衣帽間內小柜子。季節性衣服男主人和女主人分開放入老衣柜。
?改造前
“工匠精神,就是鼓舞我們向上的精神,匠人之心,就是鼓舞人心的一種工作態度,所以我特別畫了一面鼓。”—宋微建
次臥—“獨立選擇”
次臥為徐立平兒子居住。他繼承了徐家的優秀品質,自小成績優異,現在更是學業有成。不僅如此,具有男子漢氣概的學霸很注重時尚。次臥除了設置集中衣柜和書桌,解決衣物與書籍收儲。從家具以及物品的選配上,還增加了酷元素。
改造前
衛生間—“明亮空間,干濕分離”
主衛使用隱藏式水箱馬桶,節約空間,增加臺面及儲藏空間;浴簾式淋浴間,節約空間,淋浴間增設晾衣繩,延續原有主人使用習慣,同時也做到了干濕分離。
客衛生間隔斷拆除,既能夠將整面墻面統一,同時可以增加采光,緩解無窗的隱患。
改造前
廚房—“儲物超強,方便打理”
原廚房的收納空間有限,造成許多食品雜物只能亂堆亂放,改造后做了整體櫥柜、吊柜,即滿足更強的儲物功能,又使空間干凈整潔。
改造前
書房—“辦公與待客”
三米多長的超大工作臺,厚度足夠,滿足徐師傅的技術研究與手工習慣。增設的沙發床,親友來訪又可成為客房。
改造前
照明—“柔和的光”
徐師傅日常工作需要精神高度集中,做事需要極其細致,工作中常面對刺眼的照明。因此,在設計中盡可能的使用了柔和光,燈具不特意做造型,多采用間接照明,需要亮度的地方也采用3000-4000K相對柔和的光。客廳、主臥、次臥、衛生間、廚房,讓家的每一處,雙眼都有著放松和舒適感。
收納—“有次序性的高效儲物”
整個空間,活動和收納嚴格區分開,將空間釋放出來。看上去比較緊湊,但實際使用上則各得其所。
客廳利用原隔墻增加了儲物柜,可作鞋柜。餐廳利用原隔墻增加了食品柜,可放置酒、茶餅、工藝品等。增加了儲藏室,雜物收入儲藏室。次臥設置集中衣柜、書桌,解決兒子衣服收儲。主臥在保留原衣柜基礎上,增加了衣帽間,解決夫婦倆衣服收儲。
儲物收納示意圖
氛圍—“下班回家,溫柔港灣”
在整個設計中,貫穿了一個理念—“自然的力量”。原屋的暖氣片熱氣流會揚起灰塵,所以在局部吊頂中安置了隱藏式的新風凈化機,使空氣內外循環,提高環境空氣質量。
設計的本意,就是剔除掉虛假的、不自然的東西。用天然的材料,保留原有的老衣柜,只需要一些簡單的點綴,整個空間就更加有層次,又不乏靈動。




設計是為了使房屋更好的被利用。對于設計師而言,如何打造出家的舒適溫馨,與生活的能力密切相關,生活的質量源于細節,珍惜大自然給予我們的饋贈,踏進家門的那一刻,去擁抱生活,享受生活。?
宋微建,中國建筑學會室內設計分會副理事長、上海微建建筑空間設計首席設計師、上海農道鄉村規劃創作總監、2012和2013年度中國室內設計十大影響力人物之一。
80年代開始從事室內設計,創作出一系列具有“新江南形式語言”特色、影響深遠的空間作品和家具產品。近年來致力于傳統鄉村修復性規劃;歷史街區、老建筑改造等設計。
道法自然、崇尚“天人合一”的中國宇宙觀。在設計中對中國傳統文化進行深入探索與發展,構建了微建空間設計的核心觀念:傳承東方文化的精髓;營造適合當代人生活的具有東方人文關懷的空間。



















































