宋微建與熊貓守護人-央視《秘密大改造》
“CCTV-2《秘密大改造》第四季首播視頻已上線,此次主人公四川都江堰野生大熊貓保護站站長朱大
“CCTV-2《秘密大改造》第四季首播視頻已上線,此次主人公四川都江堰野生大熊貓保護站站長朱大海,設計師宋微建在節目組的安排下,作為大熊貓保護的志愿者與朱大海進行了深入的交流,感慨于朱大海在平凡崗位上幾十年如一日的堅持與奉獻,決定用設計解決朱大海對于家庭的后顧之憂,完成他對于老父親盡孝的心愿……”
?緣 起?
四川龍池保護站是龍溪-虹口國家級自然保護區最偏僻、海拔最高的站點(海拔1800米),該保護站的主要工作任務是研究與保護生態環境,以便野生大熊貓在保護區內生存、繁殖。
龍溪-虹口國家級自然保護區
紅外相機拍攝大熊貓
保護站位置偏僻,氣候多變,常年為雨水天氣,不通水電與網絡,生活條件及其艱苦。主人公朱大海自2000年從江西來到四川都江堰擔任龍池保護站站長后,長期堅守在保護區基層崗位上,20年來風雨無阻,成為了保護站內12只野生大熊貓背后的秘密守護者。
朱大海與同事工作場景
背后的遺憾
朱大海20年的在工作上的默默付出,離不開在背后默默支持了他20年的妻子和家人。但是由于工作原因,他常年在家呆的時間十分短暫,對家庭疏于照顧。
父親偶爾從江西來家里住也只能在陽臺臨時搭建床鋪;兒子也沒有獨立的學習和生活空間;妻子再勤快愛干凈,房子收納空間的嚴重不足導致雜物擺放成堆,家中家務負擔;空間潮濕陰暗不通風,讓本就一身風濕病的自己回到家也沒辦法得到好的休息環境……
朱大海一直想要把年邁的父親接到身邊照顧,但是面對已經十分擁擠雜亂的居住環境,沒辦法實現這個想法,心里對家人十分愧疚。
設計師宋微建“臥底”與朱大海交談
?改 造 前?
建筑現狀
外墻是370墻,內承重墻240,廚衛隔墻120。建筑外保溫是后加的50厚擠塑板,保溫板與墻體粘合不良,空鼓漏風嚴重,門窗洞口側沒有做保溫,冷橋效應明顯,保溫效果非常不好。
外窗是雙層玻璃塑鋼移窗,漏風、結露嚴重;外墻內側結露發霉。
陽臺頂底面無保溫層;墻根無地下水氣滲透洇潮現象;陽臺熱量散失嚴重。
室內現狀
房屋位于頂層,原建筑屋頂沒有保溫層,室內吊頂為平頂,遮住了頂面結構。
城市多雨霧,室內門窗簡陋且損壞,密閉性不夠,室內潮濕。
地板是PVC材質,遇潮膨脹。
功能布局不合理,家具損壞嚴重,部分功能設計不合理(廚房操作臺面太低)。
用餐空間狹小,無法滿足多人用餐。
收納空間不足。
露臺雨棚失修,常年漏雨。
家庭需求
設計師與朱大海妻子交流
增加一間獨立的臥室給父親。
解決房屋潮濕的問題。
增加收納空間。
為小孩提供獨立的學習空間。
擴大用餐空間。
需要符合人體工程學的廚房空間。
隔開廚房與臥室空間(平時油煙會飄過去)。
需要制熱效果好的熱水器(洗澡的時候要接大盆涼水才有熱水)。
設計難點:要在一個空間里加一間房,而不是多一張床、多睡一個人。
方案最終手稿
?設 計 理 念?
在地化、自然環保、創新性
設計目的:讓未來居住在這個房子里的每一個人都有屬于自己獨立的空間,保持家庭溫情基調的同時實現空間各自為政,互不干涉,滿足這個家里每個人對家、對生活的需求和憧憬。
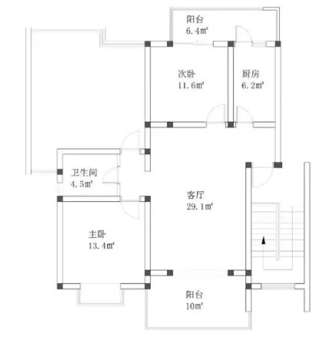
改造后平面布置圖
改造后的空間由原來的兩室一廳改為三室一廳,主臥和次臥分別為夫妻房和老人房,增加一間小孩房。
改造后空間圖
利用朝南的陽臺(2.5m進深),隔出一塊獨立的房間,還特別按照正常房間的窗扇處理,完全抹去了陽臺的感覺。廚房和主次衛的位置保持不變,利用屋面坡頂的高度,加建一個閣樓,作為儲藏間使用。原露臺進行翻新,增加雨棚遮擋,主要作為晾曬區使用。
設計師與施工方、供應商交流
?改 造 后?
針對房屋內部潮濕的問題,將門窗全部換為鋁合金斷橋鋁中空玻璃,形成一個室內封閉性空間,同時增加新風口,確保新鮮空氣的輸入。充分利用坡屋頂上的空間,除客廳外,小孩房、夫妻房、老人房、廚房吊頂均做了局部上升,使空間更具變化和活躍。
客餐廳
客餐廳方案圖?
客餐廳實景圖
客廳和餐廳合二為一,使兩個空間相互借用,避免單個空間顯得擁擠。客廳因為讓出了小部分面積給小孩房,為了避免公共活動區域顯得狹小封閉,設計師選擇裸頂設計,屋頂增加保溫層,既隔熱,又滿足寬敞明亮的空間需求。
長圓桌
原本的用餐空間需要借道,所以設計師為餐廳專門設計了一款“長圓桌”,正常狀態下是小長桌,打開則是圓桌,可容納8-10人,既滿足日常就餐需求,也可滿足家庭多人聚餐需求。
擺件
餐廳擺件實景圖
設計師精心挑選了“千里眼和順風耳”抽象木制雕塑擺放在餐邊柜上,代表著男主人保護熊貓時巡視觀察的工作特點。
竹籠燈
竹籠燈靈感來源與設計手稿
“竹籠榪槎”是都江堰的代表符號,是我國古人智慧的結晶。設計師在原竹籠的基礎上進行再創作,并邀請當地非遺傳承人合作。為客廳設計了一款長3米的竹編可調光吊燈,美觀與實用價值兼顧。
靠墊
植物靠墊設計手稿與配色
參照都江堰特有的植物設計了一系列抱枕圖案,選擇設計師家鄉蘇州的傳統絲綢和刺繡工藝,為主人家設計了一組獨一無二的絲綿抱枕。
靠墊細節
守望龍溪

客廳沙發與裝飾畫
客廳沙發后的裝飾畫則是設計師邀請朋友孫君老師(中國著名的環保志愿者),為男主人畫了一副憨厚可掬的熊貓圖,上有題字:守望龍溪。
主臥
主臥實景圖
室內裝修陳設部分切合男主人自然保護的工作性質以及他的環保主張,地面主要使用實木地板、瓷磚,墻面及窗簾布藝全部使用環保材料。主臥的床靠板、客廳的茶幾以及衛生間的梳妝鏡下下擱板,均使用隨形的原生態木板。
主臥色調變化
兒子房
兒子房實景圖
藏藍色的軟木墻裙特色鮮明,與客餐廳、夫妻房的自然風格形成鮮明的對比,半墻的書架滿足了學習的使用需求,充足的光照最先從室外照入這里,獨立的書桌、獨立的衣櫥,這里是獨屬于小孩的自由空間。
兒子房實景圖
房內的兩個結構柱,設計師則利用衣柜的設計將其包裹在內,隔出了四個獨立的衣柜和鞋柜。男主人作為野生大熊貓的守護者,一家人都對熊貓有著特殊的感情。所以設計師專門采購了一組不同大小的丹麥瞇眼熊貓玩偶,委托中國傳統植物染手工藝人梅子,對玩偶進行重新染制并擺放在小孩房內。
設計師為小孩展示軟木墻功能
老人房
老人房實景圖
落地窗前留有充足的空間作為小陽臺使用,擺放一張休閑沙發,充足的陽光照射進來,盡享休閑時光。隔墻式的櫥柜增加更多的儲物空間。
衛生間
衛生間實景圖
衛生間臺盆后的整面墻則是設計師請馬可波羅瓷磚博物館的瓷畫藝術家,專門雕刻了一副白描竹林圖。衛生間設置獨立的抽、排氣設備,配置帶烘干功能的毛巾架,加快水汽的蒸發。
廚房
廚房實景圖二
將小陽臺納入廚房使用空間,重新設計櫥柜,增大收納與置物空間。
一層玄關、二層閣樓收納
二層閣樓書架實景圖
入口玄關柜設計師根據都江堰多雨霧的天氣專門設置了懸掛雨傘的空間。
改造方案增加了一個11m3閣樓儲物間,比需求量多出5m3空間,占需求量的50%。新增加的收納空間是原來的1.5倍,整個空間中設計師將收納空間分為三個層面。第一個是入戶門公共的收納柜,不進入衣柜的常用的物品都可以放在這里;第二個層面是每個房間獨立的衣柜,放置常用的、季節性的物品;第三層面是閣樓儲藏室的柜子,家里不常用的、過季的衣服、鞋子、雜物都可以整理收納在這里。
收納空間展示
?朱 大 海 一 家 感 動 收 房?
收房后入住體驗
* 本文攝影來源:404NF STUDIO、宋微建
中國建筑學會室內設計分會 副理事長
中國建筑學會專家庫專家
中國城鎮化促進會理事
清華大學國家鄉村振興課題組專家
中國城市發展研究院宋微建工作室主持
微建設計創始人
上海農道創始人、設計總監
2018中國設計年度人物
兩屆獲選中國室內設計十大影響力人物
全國有成就資深室內建筑師
中國十佳酒店設計師
1989-2019中國室內設計30年卓越室內建筑師
80年代開始從事設計,創作系列“新江南形式語言”特色、影響深遠的空間作品。2008年汶川大地震以志愿者身份投入災后重建,開始投入鄉村規劃設計與傳統鄉村修復性規劃,同時投入清華大學公益基金“清農學堂”鄉村規劃設計人才培養,先后在人民大學,半湯鄉學院,全國各地舉辦鄉村建設人才培訓,力推人才振興與教育振興之路。堅持平民教育,崇尚“活化傳統,晴耕雨讀”的中國人生活觀。在設計中對中國傳統文化進行深入探索與發展,構建了微建空間設計的田園觀念——傳承東方文化的精髓,營造適合當代人生活的具有東方人文關懷的空間。













































